Huis
€ 547.000 (In optie)

Dr.F. De Wachterlaan 5, 2870 Ruisbroek

Omschrijving Ref.: 7205852

Ruime instapklare woning op toplocatie


Vandaag nemen we je mee naar deze moderne open bebouwing gelegen in een rustige wijk te Ruisbroek. Ideaal voor koppels of gezinnen die op zoek zijn naar een ruime, instapklare woning met vier slaapkamers en twee badkamers.

Deze woning combineert ruimte en licht, met een uitstekende ligging, tussen Antwerpen en Brussel en toch vlak bij een natuurgebied.

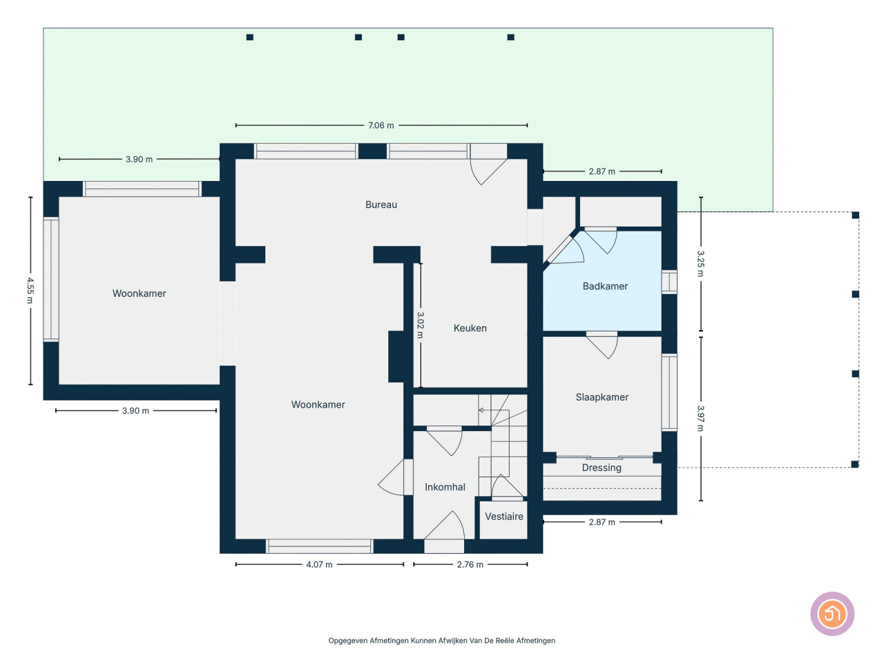
We komen binnen in de inkomhal, voorzien van een vestiaire. Verder lopen we door naar de ruime leefruimte met een zeer aangename eetplaats waar licht en zicht op de tuin centraal staan. Vanuit de leefruimte wandelen we verder naar het bureau, die toegang geeft tot de geïnstalleerde keuken.

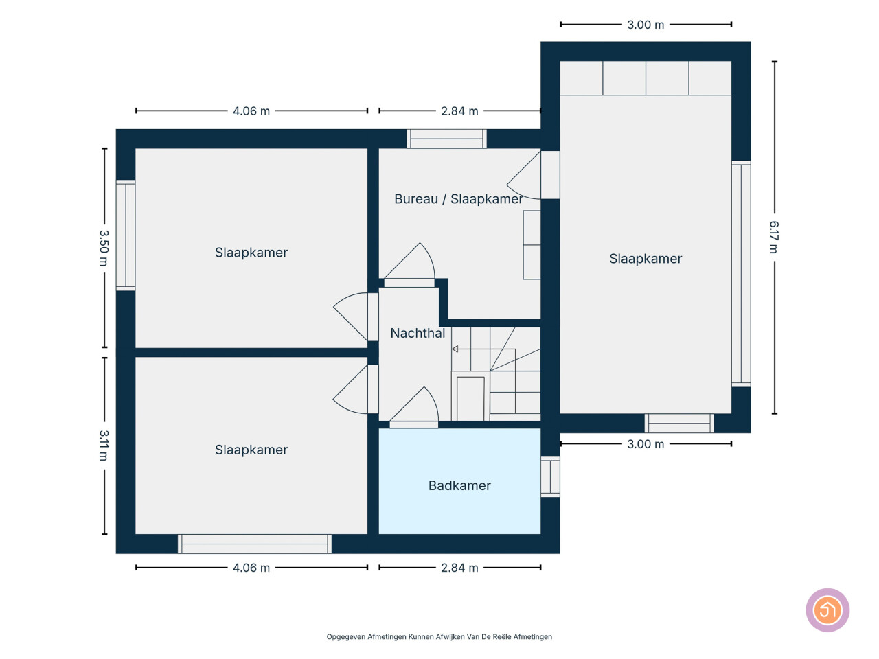
Boven bevinden zich drie slaapkamers en een dressing, allen voorzien van rolluiken. Verder is er een badkamer met lavabo, toilet en ligbad.

De vierde slaapkamer en tweede badkamer bevinden zich beneden en zijn zeer praktisch, maar je kan deze ruimte ook voor andere doeleinden gebruiken.

De zuidwest gerichte tuin is een waar paradijs, opgedeeld in verschillende gezellige plekjes zoals een loungehoek, een overdekt terras en als kers op de taart, een ingebouwd verwarmd zwembad van 8m op 4m.

Dankzij de carport en ruime oprit beschik je over voldoende parkeermogelijkheden.

Heb je interesse in deze prachtige woning?
Neem gerust contact op via yordi@julimmo.be of 0473 76 18 07.


Contacteer Yordi voor meer info over dit pand

Yordi Peeters 0473 76 18 07
contact

Details van het pand

Financieel

Prijs
€ 547.000,00
Onder BTW stelsel
Nee
Beschikbaarheid
Vanaf akte
Kadastraal inkomen
€ 808,00

Ligging

Buurt
Rustig, landelijk
School nabij
190m
Winkels nabij
1.100m
Openbaar vervoer nabij
1.500m
Autosnelweg nabij
1.200m
Station nabij
1.000m
Stad nabij
1.300m

Gebouw

Bewoonbare oppervlakte
200,00 m²
Aantal gevels
4
Bouwjaar
1965
Renovatiejaar
2002
Staat
Goede staat
Oppervlakte hoofdgebouw
121 m²
Gevelbreedte
15,00 m
Type dak
Zadeldak
Oriëntatie achtergevel
Zuidwesten
Oriëntatie voorgevel
Noordoosten

Terrein

Grondoppervlakte
638,00 m²
Breedte aan straatkant
29,42 m
Tuin
Ja
Oriëntatie tuin
Zuidwesten
Oriëntatie terras
Zuidwesten
Oriëntatie terras 1
Zuidwesten

Parkeermogelijkheden

Carport
Ja
Parkings buiten
3
Fietsenberging
Ja

Indeling

Hal
Ja
Woonkamer
24,42 m²
Eetkamer
21,03 m²
Keuken
9,33 m², VS volledig geïnstalleerd
Bureau
7,75 m²
Nachthal
Ja
Slaapkamer 1
9,32 m²
Slaapkamer 2
12,62 m²
Slaapkamer 3
18,51 m²
Slaapkamer 4
14,20 m²
Dressing
2,87 m²
Badkamer 1
6,32 m²
Badkamer 2
5,99 m² douche in bad
Toiletten
2
Wasplaats
1,10 m²

Comfort

Rolluiken
Ja
Zwembad
Verwarmd

Energie

EPC
121 kWh/m²/jaar
EPC unieke code
20251023-0003714914-RES-1
Dubbele beglazing
Ja
Ramen
Aluminium
Elektriciteitskeuring
Ja, niet conform
Datum keuring
30/10/2025
Type verwarming
Gas cv
Verwarming
Individueel
Zonnepanelen
Fotovoltaïsche
Regenwaterput
5.000 L

Technieken

Elektriciteit
Ja
Kabeltelevisie
Ja
Riolering
Ja
Gas
Ja
Water
Ja

Beveiliging

Omheining
Ja

Stedenbouw

Bestemming
Woongebied
Bouwvergunning
Ja
Verkavelingsvergunning
Nee
Voorkooprecht
Nee
Dagvaarding
Nee - geen rechterlijke herstelmaatregel of bestuurlijke maatregel opgelegd
O-peil
Niet gelegen in een overstromingsgevoelig gebied
G-score
A
P-score
D
Watergevoelig openruimtegebied
Nee
Vonnissen
Nee
Kadaster sectie
B
Kadaster nummer
12032B0146/00E004
Servitude
Nee

Meer info over deze eigendom

Bedankt voor je bericht, we contacteren je zo spoedig mogelijk.
Er was een probleem bij het versturen van het formulier, gelieve opnieuw te proberen.
U moet de algemene voorwaarden aanvaarden om dit bericht te kunnen verzenden
(*) Gelieve de verplichte velden in te vullen.