Individuele handelszaak
€ 299.000

Boomstraat 32, 2880 Bornem

Omschrijving Ref.: 7276475

Commerciële handelswoning op een absolute topligging


Gelegen in de levendige winkelstraat van Bornem, stellen wij jou deze veelzijdige handelswoning met charmante woonst en ruime stadstuin voor. Een unieke combinatie van werken en wonen op een topligging, op wandelafstand van winkels, horeca en openbaar vervoer.

De laatste renovatiewerken dateren van 2005.
Je bekomt een EPC-label D indien u het dak isoleert.

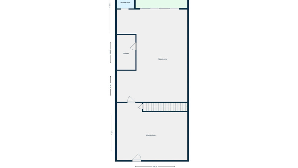
Bij het betreden van het pand kom je meteen in de handelsruimte, die jarenlang werd uitgebaat als juwelierszaak. Dankzij de brede vitrine geniet deze ruimte van een uitstekende visibiliteit.

Achter de handelsruimte bevindt zich het gezellige woongedeelte, bestaande uit een ruime leefruimte, een functionele keuken en een lichtrijke veranda met zicht op de tuin. De aangename stadstuin biedt een rustige buitenruimte midden in het centrum en beschikt bovendien over een praktisch tuinhuis.

Op de eerste verdieping vinden we drie volwaardige slaapkamers en een badkamer voorzien van ligbad, douche en lavabo terug. Via een vaste trap bereiken we de zolderverdieping van maar liefst 48 m² – ideaal als extra opslagruimte, hobbyruimte of zelfs voor het creëren van bijkomende slaapkamers.

Deze eigendom biedt tal van mogelijkheden: van een combinatie wonen/werken tot een opbrengsteigendom met potentieel. De ligging in de winkelstraat van Bornem maakt dit pand extra interessant voor ondernemers of investeerders.

Heb je interesse in deze handelswoning op toplocatie?
Neem gerust contact op via roy@julimmo.be of 0498 62 74 71.


Contacteer Roy voor meer info over dit pand

Roy Van Echelpoel 0498 62 74 71
contact

Details van het pand

Financieel

Prijs
€ 299.000,00
Onder BTW stelsel
Nee
Beschikbaarheid
Vanaf akte
Kadastraal inkomen
€ 850,00

Ligging

Buurt
Centraal, handelsligging
School nabij
350m
Winkels nabij
200m
Openbaar vervoer nabij
400m
Station nabij
500m

Gebouw

Oppervlakte
182,00 m²
Aantal gevels
2
Bouwjaar
1850
Renovatiejaar
2005
Staat
Goede staat
Aantal verdiepingen
2
Breedte vitrine
6,00 m
Oppervlakte hoofdgebouw
111 m²
Gevelbreedte
6,00 m
Type dak
Zadeldak
Oriëntatie voorgevel
Oost

Terrein

Grondoppervlakte
260,00 m²
Oriëntatie tuin
West
Oriëntatie terras
West
Oriëntatie terras 1
West

Parkeermogelijkheden

Parkings buiten
Ja

Indeling

Keuken
7,50 m², volledig geïnstalleerd
Toiletten
2
Kelder
Ja
Zolder
Ja

Comfort

Alarm
Ja
Rookdetector
Ja
Lift
Nee
Rolluiken
Ja
Zwembad
Nee

Specifieke ruimtes

Toiletten M/V
Ja

Energie

EPC
703 kWh/m²/jaar
EPC unieke code
20250521-0003606526-RES-1
Dubbele beglazing
Ja
Ramen
Hout
Type verwarming
Stookolie cv
Verwarming
Individueel
Datum keuring olietankattest
22/05/2025

Technieken

Elektriciteit
Ja
Water
Ja

Stedenbouw

Bestemming
Woongebied
Bouwvergunning
Ja
Verkavelingsvergunning
Nee
Voorkooprecht
Nee
Renovatieverplichting
Ja
Dagvaarding
Nee - geen rechterlijke herstelmaatregel of bestuurlijke maatregel opgelegd
O-peil
Niet gelegen in een overstromingsgevoelig gebied
G-score
A
P-score
A
Watergevoelig openruimtegebied
Nee
Vonnissen
Nee
Kadaster sectie
B
Kadaster nummer
0362LP0000

Meer info over deze eigendom

Bedankt voor je bericht, we contacteren je zo spoedig mogelijk.
Er was een probleem bij het versturen van het formulier, gelieve opnieuw te proberen.
U moet de algemene voorwaarden aanvaarden om dit bericht te kunnen verzenden
(*) Gelieve de verplichte velden in te vullen.